微生物實驗室良好的通風是關鍵,必要時更應配備抽風機。接種、分離及鑒定細菌等操作應在生
物安全柜中進行,對結核桿菌等傳染性極強的微生物學檢驗時必須在100%外臨床微生物學實驗室接
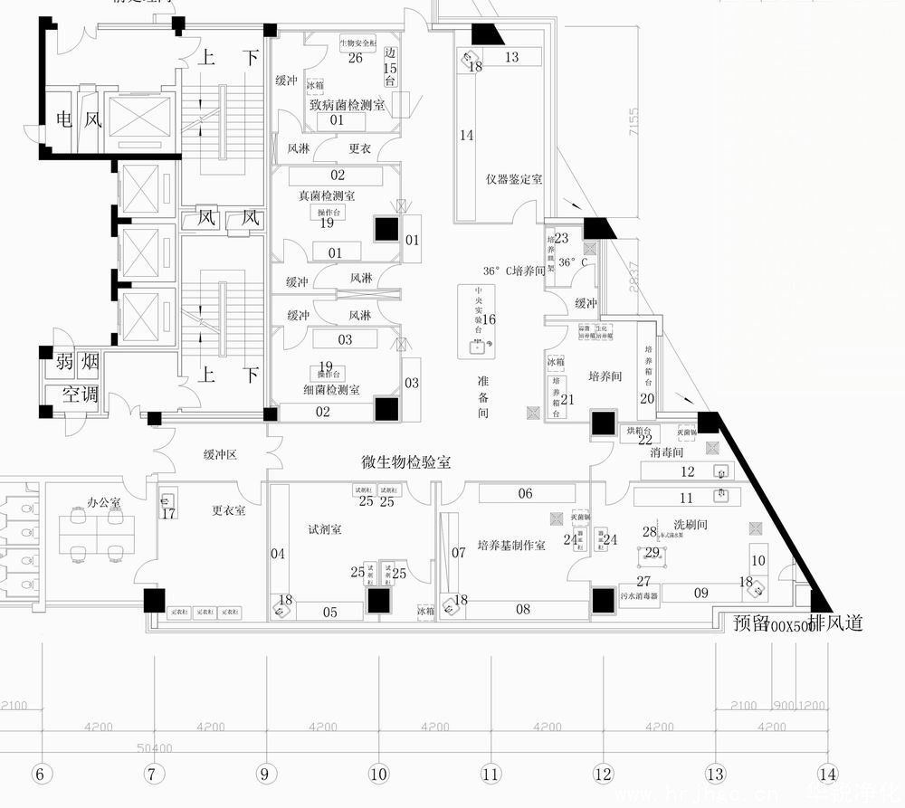
觸多種有害微生物,為了防止交叉污染,保護工作人員健康,實驗室應至少劃分成3個區。

一、清潔區 包括辦公室、休息室、培養基配制室與試劑儲藏室。此區域禁止帶人細菌檢驗標本。

二、操作區 (1)整潔:微生物操作區是各種病原菌相對集中的地方,為了減少粉塵流動,防止交叉
污染,操作區應與外界分開。實驗室工作人員進入操作區應換鞋,送標本人員不進入操作區,操作區
地面用專用拖把每天拖1次,每周用消毒劑擦洗1次。每天早上工作前,用紫外線照射30min,或每天
工作后,用紫外線照射60min,對整個操作區進行消毒;下午工作結束后用消毒液消毒工作臺面,以
保證工作環境的安全清潔。

(2)光線:細菌培養的細小菌落及血清試驗凝集顆粒的觀察,都需要有充足的光線。操作區除設置常
規照明燈外,還必須安裝操作臺燈,以保證實驗結果的正確判斷。
(3)通風:由于各種病原菌集中,空氣污濁,實驗室要求保持排的生物安全柜中進行。
(4)溫度和濕度:由于無菌操作的要求,實驗過程中經常使用酒精燈,因此,微生物學實驗室不能安
裝吊扇。為了達到實驗所需的適宜溫度,尤其是滿足某些儀器對溫度濕度的要求,實驗室應安裝空調。
(5)電源:要求提供穩壓、恒頻的電源;根據儀器設備要求,必要時配備不間斷電源。
(6)水源:操作區內須設置水源。用于標本處理(如細菌染色)的水槽與工作人員洗手用的水槽不能
混用。
(7)污染物處理:操作區須備有消毒缸,以處理沾有活菌的玻片等污染物品。檢驗剩余的標本及使用
過的帶菌平板、試管均須集中地點安全放置,經消毒滅菌處理后再洗滌或丟棄。

三、無菌區
(1)無菌室應完全封閉,進出無菌室至少要經兩道門,中間隔有緩沖間,無菌室與外間設置一個可開
閉的窗口,用于傳遞器具。
(2)無菌室必須保持整潔。工作人員進入無菌室應換專用鞋、專用衣。無菌室使用前須用紫外線消毒
30min,操作結束后清潔臺面,再用紫外線消毒30min。定期用乳酸或甲醛熏蒸,徹底消毒。
(3)無菌室僅用于培養基分裝等無菌操作,不能進行有菌標本的操作。操作人員操作時應嚴格關門,
并戴好專用的口罩、帽子。
(4)無菌室內應有空氣過濾裝置,并安裝空調。